Каталог

Резцы для токарной обработки. Режущий инструмент

Режущий инструмент

При работе на токарных станках применяют различные режущие инструменты: резцы, сверла, зенкеры, развертки, метчики, плашки, фасонный инструмент и др.
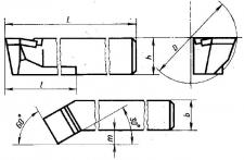
Токарные резцы являются наиболее распространенным инструментом, они применяются для обработки плоскостей, цилиндрических и фасонных поверхностей, нарезания резьбы и т.д. Элементы резца показаны на рисунке.


Резцы для токарной обработки - Элементы резца

Резец состоит из головки (рабочей части) и стержня, служащего для закрепления резца в резцедержателе.
Передней поверхностью резца называют поверхность, по которой сходит стружка. Задними (главной и вспомогательной) называют поверхности, обращенные к обрабатываемой детали. Главная режущая кромка выполняет основную работу резания. Она образуется пересечением передней и главной задней поверхностей резца.
Вспомогательная режущая кромка образуется пересечением передней и вспомогательной задней поверхностей.
Вершиной резца является место пересечения главной и вспомогательной режущих кромок.


Резцы для токарной обработки - Плоскость резания

Для определения углов резца установлены понятия: плоскость резания и основная плоскость. Плоскостью резания называют плоскость, касательную к поверхности резания и проходящую через главную режущую кромку резца (смотри рисунок).
Основной плоскостью называют плоскость, параллельную направлению продольной и поперечной подач; она совпадает с нижней опорной поверхностью резца.

Углы резца разделяют на главные и вспомогательные (смотри рисунок). Главные углы резца измеряют в главной секущей плоскости, т. е. плоскости, перпендикулярной проекции главной режущей кромки на основную плоскость.

Резцы для токарной обработки - Главные и вспомогательные углы резца

Главным задним углом a называется угол между главной задней поверхностью резца и плоскостью резания. Углом заострения b называется угол между передней и главной задней поверхностями резца. Главным передним углом g называется угол между передней поверхностью резца и плоскостью, перпендикулярной плоскости резания и проходящей через главную режущую кромку резца. Сумма углов a+b+g=90 градусов. Углом резания d называется угол между передней поверхностью резца и плоскостью резания. Главным углом в плане j называется угол между проекцией главной режущей кромки на основную плоскость и направлением подачи. Вспомогательным углом в плане j называется угол между проекцией вспомогательной режущей кромки на основную плоскость и направлением подачи.
Углом при вершине в плане e называется угол между проекциями главной и вспомогательной режущих кромок на основную плоскость. Вспомогательным задним углом a1 называется угол между вспомогательной задней поверхностью и плоскостью, проходящей через вспомогательную режущую кромку перпендикулярно основной плоскости.
Углом наклона главной режущей кромки l называется угол между главной режущей кромкой и плоскостью, проходящей через вершину резца параллельно основной плоскости.

Резцы классифицируются:
по направлению подачи - на правые и левые (правые резцы на токарном стане работают при подаче справа налево, т. е. перемещаются к передней бабке станка);
по конструкции головки - на прямые, отогнутые и оттянутые (смотри рисунок);

Резцы для токарной обработки - классификация резцов

Резцы: а - прямые, б - отогнутые, в - оттянутые

по роду материала - из быстрорежущей стали, твердого сплава и т. д.;
по способу изготовления - на цельные и составные (при использовании дорогостоящих режущих материалов резцы изготовляют составными: головка - из инструментального материала, а стержень - из конструкционной углеродистой стали; наибольшее распространение получили составные резцы с пластинами из твердого сплава, которые припаиваются или крепятся механически);
по сечению стержня - на прямоугольные, круглые и квадратные;
по виду обработки - на проходные, подрезные, отрезные, прорезные, расточные, фасонные, резьбонарезные и др. (смотри рисунок).

Токарные резцы для различных видов обработки:

Токарные резцы для различных видов обработки

а - наружное обтачивание проходным отогнутым резцом, б - наружное обтачивание прямым проходным резцом, в - обтачивание с подрезанием уступа под прямым углом, г - прорезание канавки, д - обтачивание радиусной галтели, е - растачивание отверстия, ж, з, и - нарезание резьбы наружной, внутренней и специальной

Комментарии и вопросы:

Комментариев пока нет, но ваш может быть первым.
Разметить комментарий или вопрос

Связанные товары

Код товара: 35175
3 079 p
Нет в наличии
Ножи для SM-6
Ножи для SM-6
3 017 p
Код товара: 44106
Нет в наличии
Резец Расточной 20х16х200 тв. сплав для сквозных отверстий тип1 исп.2 (без маркировки)
Резец Расточной 20х16х200 тв. сплав для сквозных отверстий тип1 исп.2 (без маркировки)
164 p
Код товара: 43797
Нет в наличии
Набор токарных резцов 5 шт. 25мм, шт
Набор токарных резцов 5 шт. 25мм, шт
20 485 p
Код товара: 11270
Нет в наличии
Сменная пластина для CВ1 (10 шт.)
Сменная пластина для CВ1 (10 шт.)
10 384 p
Код товара: 40481
Нет в наличии
Резец Расточной 25х25х300 ВК8 для сквозных отверстий DIN 4973
Резец Расточной 25х25х300 ВК8 для сквозных отверстий DIN 4973 "CNIC"
991 p
Код товара: 11265
Нет в наличии
Набор резцов 20мм со сменными пластинами (5шт), шт
Набор резцов 20мм со сменными пластинами (5шт), шт
15 555 p
Код товара: 11266
Нет в наличии
Набор резцов 25 мм со сменными пластинами (5шт), набор
Набор резцов 25 мм со сменными пластинами (5шт), набор
19 720 p
Код товара: 40485
Нет в наличии
Резец Расточной 25х25х300 Т5К10 для сквозных отверстий DIN 4973
Резец Расточной 25х25х300 Т5К10 для сквозных отверстий DIN 4973 "CNIC"
991 p
Код товара: 40488
Нет в наличии
Резец Расточной 40х38х300 ВК8 для глухих отверстий левый (Д-58)
Резец Расточной 40х38х300 ВК8 для глухих отверстий левый (Д-58)
767 p
Код товара: 1641
Нет в наличии
Комплект долбяков (4, 5, 6, 8, 10, 12 мм)
Комплект долбяков (4, 5, 6, 8, 10, 12 мм)
115 972 p
Код товара: 34415
Нет в наличии
Ступенчатая цанга 5С Ø76x25 мм 59500024
Код товара: 11293
Нет в наличии
Резьбонарезная пластина 60° для резцов 51
Резьбонарезная пластина 60° для резцов 51
2 714 p
Вверх